中古一戸建て 上高井郡高山村大字高井(堀之内地区)
所在地
上高井郡高山村大字高井(堀之内地区)
600万円
37.90坪
月々の
支払例
支払例
万円
年
%
円
※弊社提携銀行/借入金600万円、返済期間40年、金利1.250%変動)の場合
※審査により金利は変わる可能性があります。
物件概要
- 交通
-
長電長野線 須坂駅 バス停堀ノ内上 まで 徒歩2分
- 接道状況
- 南側
- 土地面積
- 公簿 89.75㎡ (27.14坪)
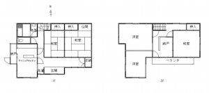
- 建物面積
- 125.29㎡ (37.90坪)
- 築年数
-
1973年
(昭和48)
7月
築52年 - 建ぺい率
- 容積率
- 土地権利
- 所有権
- 構造および階数
- 木造 地上2階建
- 小学校区
- 高山 ( 1600m )
- 中学校区
- 高山 ( 1900m )
- 私道負担
- 地目
- 現況
- 引渡時期
- 駐車場
- 上水道
- 公共
- 下水道
- 公共
- ガス
- 都市計画
- 区域外
- 用途地域
- 定無
- 設備・条件
- 備考
- 取引態様
- 仲介

